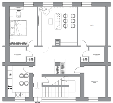
Projektuojama erdvė
69.64 m²

Baldų išdėstymo planas | Vizualizacijos

©Copyright 2025 MB EDESIGNATIO